Auction Type: Live onsite auction with online simulcast bidding - click for the bidding site
Click for 3D Virtual Walkthrough
Important Auction Dates:
- Preview - Wednesday, June 5, 2024, beginning at 11:00 am
- Preview the home anytime with a real estate agent - agents can schedule a showing through ShowingTime
- Auction - Wednesday, June 5, 2024 at 12:00 pm
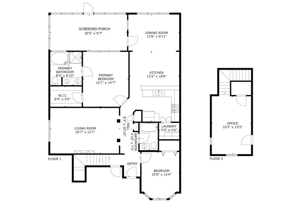
Property Information: 206 Boothbay Court in Simpsonville is located in the sought-after Wyndham Place subdivision. This one-owner, two-bedroom, two-bathroom townhome is approximately 1,400 square feet of first-floor living, with a 10’ x 15’ second-floor bonus room. This townhome features a screened-in back porch, a two-car attached garage, a walk-in closet in the owner’s suite, a gas log fireplace, and more. The homeowner’s association includes exterior home maintenance, lawn care, and common area maintenance including access to the community pool.
Directions: From 417, head northeast on Bethel Road, turn right onto Kennebec Lane, turn left onto Boothbay Court, home is on the right.
Agents: We will pay agents a 3% broker cooperation fee. Written offers before the auction will be submitted to the seller. Subject to prior sale - if an offer is accepted prior to the auction, the auction will be cancelled.
Contact Information:
- Nichole Zales, REALTOR - 864-843-5919
- Darron Meares, BIC - 864-642-2196
SC Auction Firm License 4109
- Meares Property Advisors is representing the seller only in this transaction. We pay cooperating agents 3% at closing.
- This property is being offered subject to seller confirmation of the high bid on auction day.
- An onsite ten percent (10%) OR online eleven percent (11%) buyer’s premium will be applied to the approved high bid to arrive at the contract sales price.
- Onsite winning bidder is required to sign sales contract and deposit a NON-REFUNDABLE ten thousand dollar ($10,000.00) deposit into Meares Property Advisors’ escrow account on the day of auction (escrow deposit will be deducted from amount due at closing).
- Online winning bidder must submit signed sales contract and deposit a NON-REFUNDABLE ten thousand dollar ($10,000.00) deposit into Meares Property Advisors’ escrow account within 48 hours of the close of auction or are subject to forfeiture of their bid and potential Proxibid ban (escrow deposit will be deducted from amount due at closing).
- Closing to take place within thirty (30) days of contract signing.
- This property is being sold AS-IS with no warranties or guarantees, express or implied, and with all faults. Seller makes no warranty, express or implied, as to the title of the property or zoning of the property except as warranted by its deed.
- Potential buyers can arrange their own inspections and/or appraisal before auction date, at their expense.
- Seller will pay any outstanding liens and property taxes to date of closing.
- Buyer will pay all other closing costs, including, but not limited to: attorney fees, deed preparation, deed recording, survey (if required), mortgage fees, or any other fees or expenses required to close the transaction.
- Sale of property is not subject to any contingencies, financing, or appraisal.
- Announcements made the day of auction take precedence over any previous announcements or advertisements.


























