Auction Type: Live onsite auction with online simulcast bidding (click here for the link)
Auction Date: April 25, 2019 beginning at 12:00 pm - property will be sold at the location
Preview Time: April 25, 2019 beginning at 11:00 am
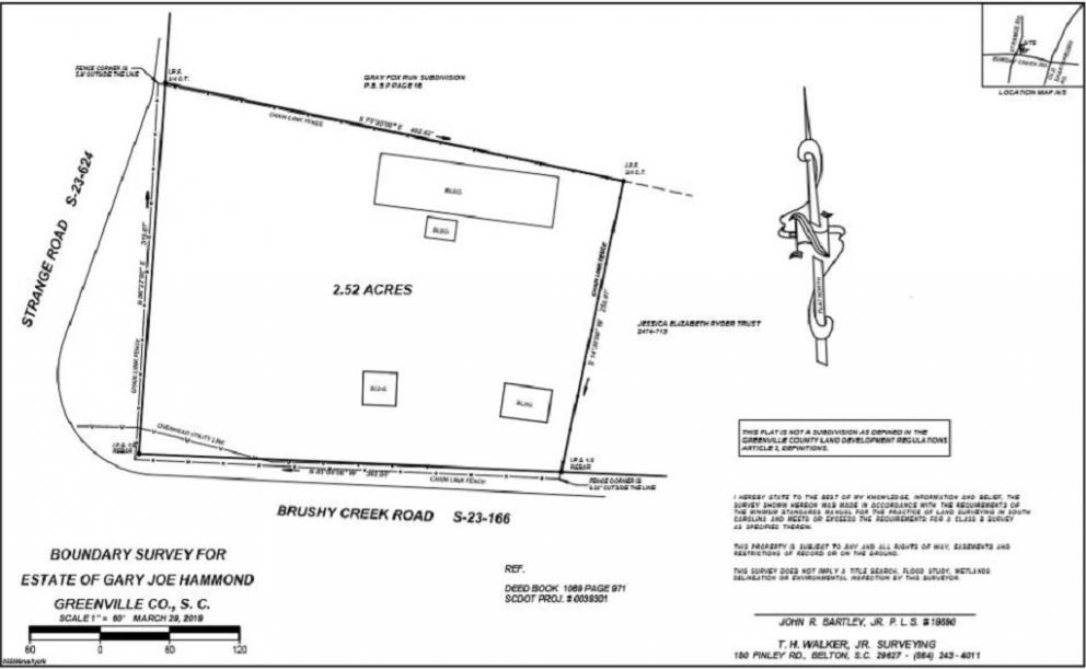
Property Information: Approximately 2.52 acres of level land located at the corner of Brushy Creek Road and Strange Road in Taylors, across from Eastside High School. A traffic signaled corner with ±363 feet of road frontage on Brushy Creek and ±320 feet of road frontage on Strange Road creates an ideal location for office, retail, or multi-family development. Currently zoned R-15, an appraisal completed in November 2018 states, “conversations with Greenville County Zoning administrator, Kristopher Kurjiaka, confirmed that the subject is a likely candidate for rezoning to a more favorable development zoning, such as O-D or POD for office, due to existing rezoning that has already occurred on Brushy Creek Road. However, Mr. Kurjiaka says that rezoning to R-M, or residential multi-family, would be most palatable to County Council.” Also noted in the appraisal, “Due to the increased traffic, a second access point for ingress and egress is desirable. Conversations with Seth Kiser, with the Greenville County office of SCDOT, said that this could be a possibility. A rezoning of the site for multi-family use, and improved access, are both legally permissible and physically possible.” No value being given to buildings on site.
SC DOT Traffic Count: SCDOT reports a 2017 traffic count of 11,400 vehicles.
Contact:
- Darron Meares, BIC - 864-642-2196
- Nichole Desko, REALTOR - 864-843-5919
- Meares Property Advisors is representing the seller only in this transaction. We welcome offers prior to auction day and are paying cooperating brokers/agents 4% commission.
- An onsite ten percent (10%) and online eleven percent (11%) buyer's premium will be applied to the approved high bid to arrive at the total contract sales price.
- This property is being offered subject to seller confirmation of the high bid on auction day.
- The winning bidder is required to deposit ten thousand dollars ($10,000.00) into Meares Property Advisors' escrow account on the day of auction (escrow deposit will be deducted from amount due at closing).
- Closing to take place within thirty (30) days of contract signing.
- This property is being sold AS-IS with no warranties or guarantees, express or implied, and with all faults. Seller makes no warranty, express or implied, as to the title of the property or zoning of the property except as warranted by its deed.
- Potential buyers can arrange their own inspections and/or appraisal prior to auction date, at their expense.
- Seller will pay property taxes to date of closing.
- Buyer will pay all other closing costs, including, but not limited to: attorney fees, deed preparation, deed recording, survey, mortgage fees, or any other fees or expenses required to close the transaction.
- Sale of property is not subject to any contingencies, financing, or appraisal.
- Announcements made the day of auction take precedence over any previous announcements or advertisements.

























